Habitat for Community

Rantoul Site

Project site: 272 Keystone Dr, Rantoul, IL

Project Overview 프로젝트 개요

This project was completed in collaboration with the Illinois Solar Decathlon and Habitat for Humanity of Champaign County to design an energy-efficient home for a low-income family. The work involved producing permit-level construction documents for an actual build and integrating building systems from the early stages of the design process, providing a practical and comprehensive understanding of real-world project delivery. A team of two people worked on this project.

이 프로젝트는 일리노이 솔라 데카슬론 및 샴페인 해비타트와 협력하여, 에너지 효율이 높은 저소득층을 위한 주택을 설계하는 것을 목표로 했습니다. 실제 시공을 목적으로 건축 허가단계 수준의 도면을 작성하고, 빌딩 시스템을 디자인 초기 단계부터 통합하는 실무적인 프로세스를 경험했습니다. 두 명의 인원이 한 팀을 이뤄 프로직트를 진행하였습니다.

Typology
Residential

Key Focus
Affordable/Passive Housing

Client
Habitat for Champaign

Location
Rantoul, Illinois

Site Analysis Diagram

Dimension
Area: 1565sqft/ 145sqm

Total: 1778sqft/ 165sqm

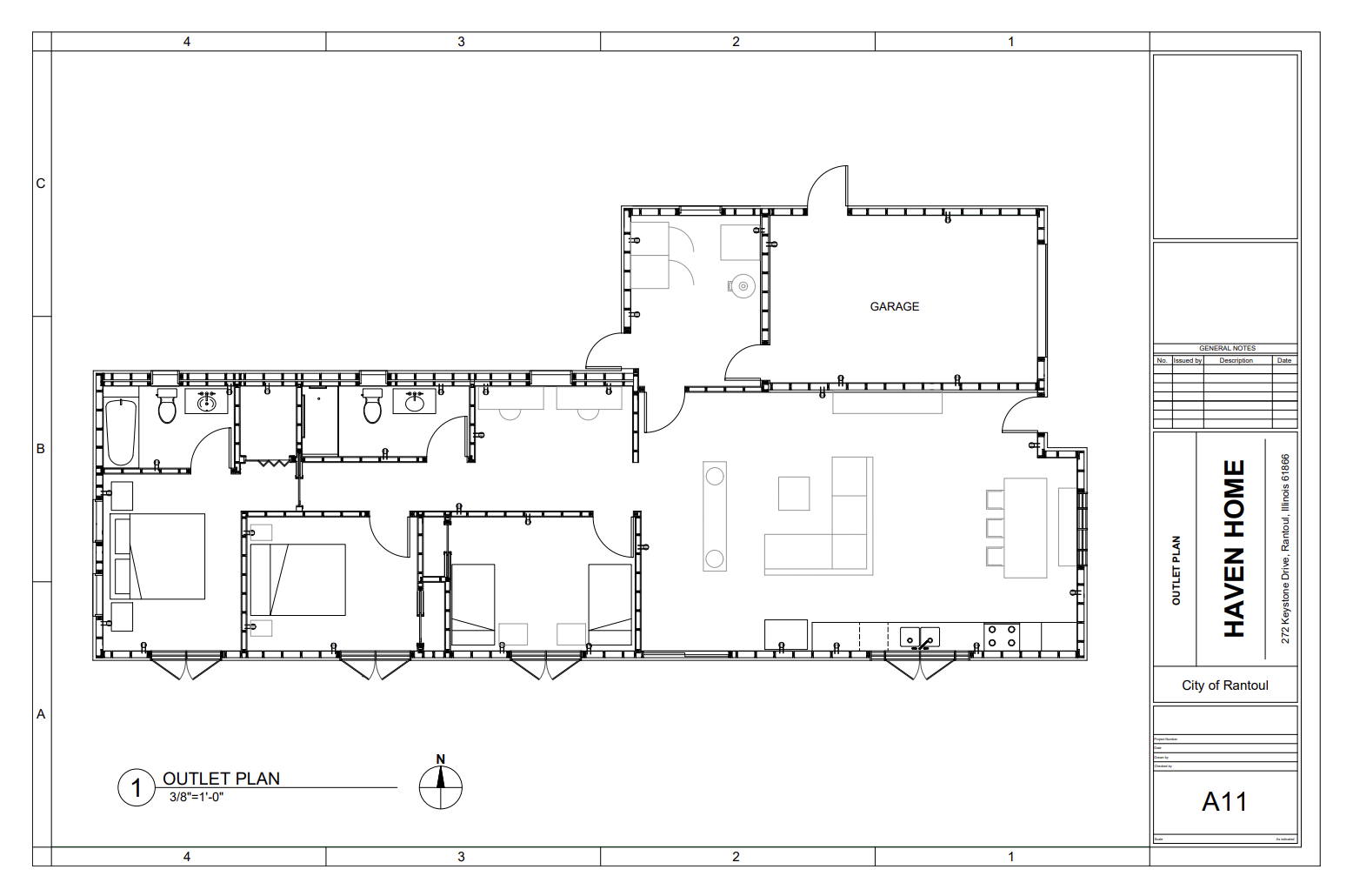
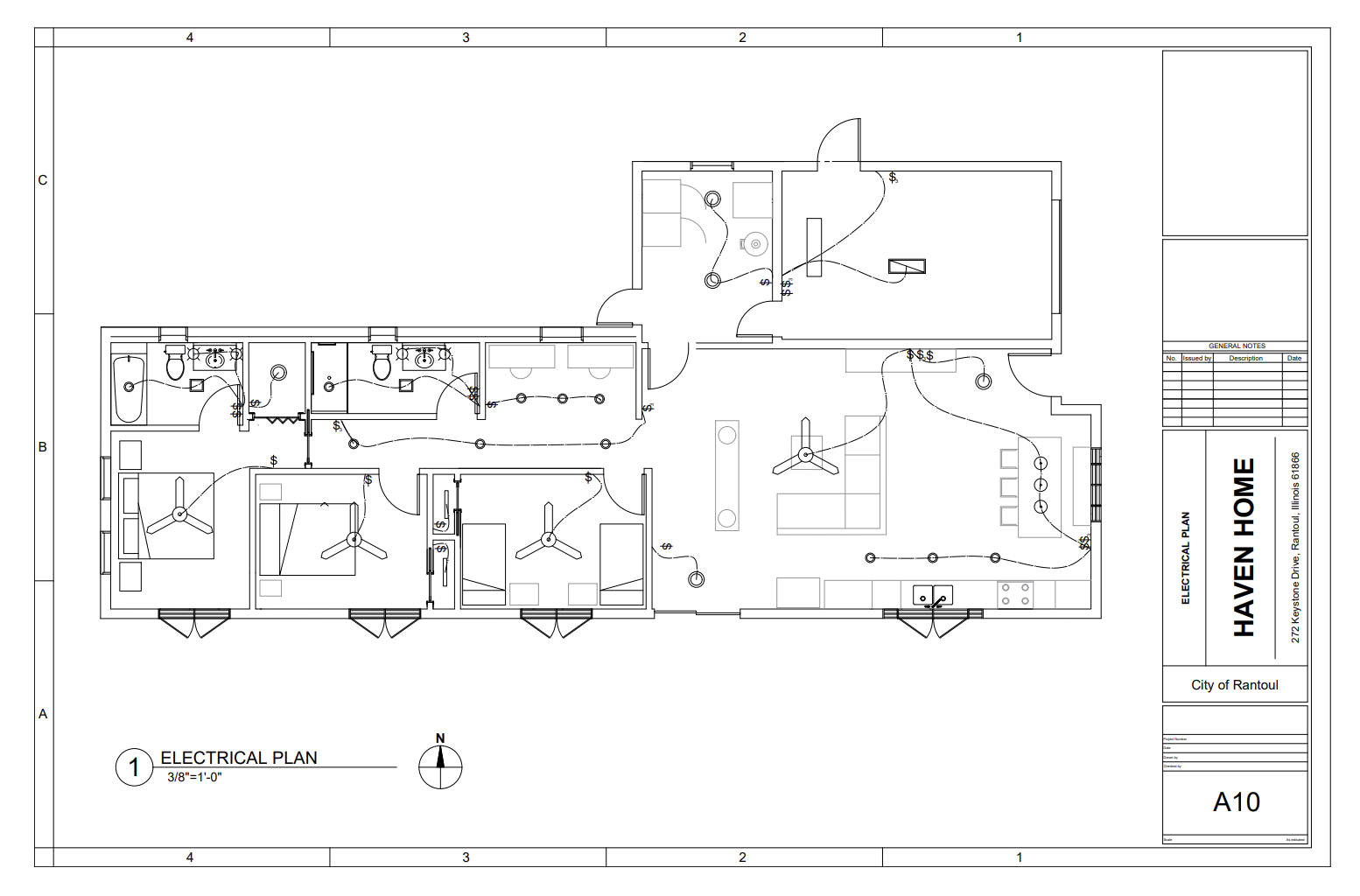
Drawing Plans

Revit process based on the plan drawing

레빗을 활용한 구조 이해

Habitat for Humanity: Core Design Principles

Habitat for Humanity’s housing initiatives are guided by a set of core design principles that balance affordability, dignity, and long-term sustainability.

Energy Efficiency & Sustainability
Homes are designed to be energy-efficient and environmentally responsible. Strategies often include enhanced insulation, optimized building orientation with south-facing windows, programmable thermostats, and water-saving fixtures. These measures reduce long-term utility costs for homeowners while minimizing environmental impact.

Accessibility
Accessibility is a fundamental consideration in Habitat housing. Design features such as zero-step entries, wider doorways, and accessible bathrooms ensure that homes can accommodate residents with disabilities and support aging in place.

Local Adaptation
Housing designs are adapted to regional contexts, incorporating locally available materials such as fired clay brick, concrete masonry units, or wood framing. Cultural practices are also reflected in the design, including elements like outdoor cooking areas or utility porches, ensuring relevance to local lifestyles.

Simplicity & Modesty
Homes are intentionally modest in scale, typically not exceeding 1,050 square feet in North America. This approach minimizes construction and maintenance costs while still providing functional, comfortable living spaces that meet the essential needs of families.

에너지 효율 및 지속가능성
주택은 에너지 효율성과 환경적 책임을 고려해 설계됩니다. 단열, 남향 위주의 창 배치, 온도조절기, 절수형 설비 등을 통해 거주자의 장기적인 유지비 부담을 줄이는 동시에 환경에 미치는 영향을 최소화합니다.

접근성
해비타트 주택은 접근성을 중요한 설계 요소로 삼습니다. 넓은 출입문, 접근 가능한 욕실 설계 등을 통해 장애가 있는 가족 구성원이나 고령자의 거주를 지원하며, 장기 거주가 가능한 환경을 조성합니다.

지역중심 설계
이 주택은 지역적 맥락에 맞게 설계되며, 점토 벽돌, 콘크리트 블록, 목구조 등 현지에서 쉽게 구할 수 있는 재료를 활용합니다. 또한 야외 조리 공간이나 다용도 현관같은 지역 생활 방식도 설계에 반영됩니다.

단순함과 절제된 규모
주택의 규모는 한정된 대지와 간격을 바탕으로 건설 및 유지 관리 비용을 최소화하면서도 가족이 생활하기에 충분한 기능적이고 쾌적한 공간을 제공합니다.

Next
Next

COMMONS